House in Ohno / Airhouse Design Office
日本Airhouse Design Office给gooood分享了这座由他们设计的,位于日本岐阜 Ohno某果园里的木结构私人小住宅。

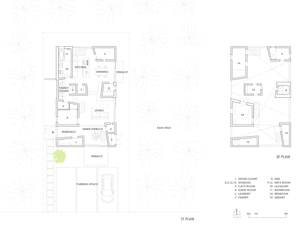
果园内的树木成为了住宅的天然隐私屏障与自然风景。身处其间的住宅构架开放,可以简单理解为7个结构体支撑起一个巨大的屋顶,这七个结构体有相当的厚度,所有的私人空间比如卫生间和卧室都位于其中,而7个结构体之间,屋顶下方的自由空间,是住宅的公共空间—客厅,餐厅,厨房。



对自然开放,并受到果树围绕的室内公共空间让人感到开阔而放松。公共空间的室内高度有两层层高的尺度,为了利用结构体的上层空间,每个都有专用楼梯到达上层,其中四个楼梯放置在公共空间中,还有三个爬梯分别放置在相对应的结构体自身中。
果树掩映间,四季常变迁,乐居享不停。





















