Holmen水上运动中心,挪威阿斯克 / ARKíS arkitektar
挪威能源利用率最高的游泳场馆
Holmen水上运动中心位于Holmen海滩,这里经过填海造陆,保护和巩固了场地的自然属性。整个场地被花园覆盖,为海滩带来非凡的美景。该项目旨在活化建筑的屋顶,使之成为海滩休闲区域的一部分。铺满植被的屋顶向南面倾斜,在Oslo fjord的群岛和礁石之上形成连续不断的景观。主入口、接待处、更衣室和游泳池皆位于建筑的主楼层,凌驾于向建筑方向倾斜的草坪之上。低处的楼层则容纳了体育馆、多功能厅、设备间以及办公设施等。
▼建筑外观

▼屋顶向南面倾斜


▼主入口、接待处、更衣室和游泳池皆位于建筑的主楼层


▼低处的楼层包含体育馆、多功能厅、设备间和办公设施

▼建筑近景



▼项目旨在活化建筑的屋顶,使之成为休闲区的一部分


▼屋顶花园



▼休闲广场


被动式的设计使建筑在能源利用方面变得更加高效,具体体现在建造方法、隔热层和建筑形式上。除此之外,设计还强调了能源的再利用,其中以热水供暖最为突出。650平方米的太阳能板和场地中的15个地热井共同将来自基岩的热能输送给建筑,在夏季还能将多余的热量传递到地表下方。
▼主楼层内部



▼主游泳池




Holmen水上运动中心被Futurebuilt选为挪威的50个建筑范例之一,并被评价为全挪威能源利用率最高的游泳场馆。建筑师的合作者包括来自特隆赫姆的NTNU,以及Verkís的工程师团队。
▼建筑上铺设了650平方米的太阳能板

▼内部交通空间

▼场地平面图

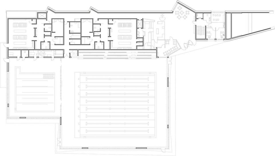
▼平面图

▼立面图

▼剖面图





