屋顶木屋


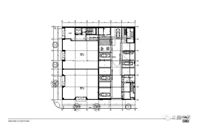
这是位于波特兰市中心西端的SW 12th & Alder的Culver Building改造项目。在四分之一街区的地块中,GDB建筑设计公司设计了在1920年的一幢20000平方英尺的二层建筑之上的加减部分,加建面积6000平方英尺,立面以玻璃和铝为主。建筑保留了原有的基础、现浇混凝土外墙、木屋顶结构,以及大部分的木梁柱。




该建筑在改造之前是一个停车库,它属于一家玻璃公司,同时也作为光学工业的厂房。提高抗震水平的改造措施包括加建新的结构、螺旋桩基础、以及混凝土砌块墙(CMU)

3500英尺长的木条在拆除过程中被保留下来,并在项目中重新利用。91%的施工废料被回收利用。






分析图

该建筑在改造之前是一个停车库,它属于一家玻璃公司,同时也作为光学工业的厂房。提高抗震水平的改造措施包括加建新的结构、螺旋桩基础、以及混凝土砌块墙(CMU)

3500英尺长的木条在拆除过程中被保留下来,并在项目中重新利用。91%的施工废料被回收利用。







