--桥梁,既是通行的道路,也是停留的场所
Dietmar Feichtinger建筑事务所在昂热Saint-Laud火车站设计了一座新的桥梁,供行人和自行车使用。桥梁呈柔软的弧线形,跨越总宽度达70米的一道道铁轨,融入到城市的地形之中。桥面由中空箱体和钢架组成,弧线西侧整合有木制长椅。项目整体优雅而轻盈,将不同地区连接在一起。由胶合木梁组层面的框架支撑屋顶和照明系统,呈现出惊人的效果,使桥梁成为一个吸睛的新地标。桥的剖面不断变化,形成动态的空间,让人们在进入、爬上楼梯、漫步、等待、坐下休息、观看和离开等行为状态下体会到不同的空间特点。项目为一个单体结构,尺度与所在区域相呼应,施工精美,提升了人们对该区域的关注度。弧形结构让桥面可以缓慢抬升,连接新建的Place Giffard-Lagenvin散步道和另一侧的公园。三台电梯和楼梯在车站、酒店,以及开往巴黎和南特的火车站台之间创造了无障碍连接,方便骑自行车的人使用。桥梁外形美观,展现了改造后车站地区的新样貌。
▼桥梁外观

▼桥梁连接铁轨两侧区域

昂热位于法国西部,是Maine-et-Loire的省会。这座城市位于巴黎和南特之间,在南特东北100公里处,距巴黎约300公里,常住人口153000人。昂热Saint-Laud火车站是城市的交通枢纽,每天有13趟开往巴黎的高速火车在这里停靠,仅需1小时45分钟就可以到达巴黎。此外,这里每天还有40班列车开往南特。车站北侧是Auguste Gauter大道,南侧为Fulton街。车站区域内铺有一道道铁轨,总宽度约为70米,在城市间形成了一道巨大的沟壑。原本铁轨两侧由一座老旧的钢筋混凝土桥梁连接,已经损毁得十分严重。
城市开发计划对这片区域进行升级。车站一侧的Auguste Gaultier大道上已经建造了一栋办公楼和一座多层停车场;另有一栋酒店正在施工。铁轨南侧的Fulton街上则将建设一条新的散步道。这座供行人和自行车使用的天桥是区域现代化的一部分,由获得竞赛优胜的Dietmar Feichtinger建筑事务所负责设计。他们的设计遵循城市尺度,跨越铁轨形成的屏障,并且设置电梯和楼梯,帮助身体不便的人直接到达站台。
▼项目远景,属于区域升级计划的一部分

▼桥梁连接铁轨两侧,让人们可以直接通往站台

▼连接道路和桥梁的楼梯

综上所述,项目是一个单体交通建筑,其造型为一道柔和的弧线,结构优雅,胶合木廊支撑平板屋顶以及照明系统,令人印象深刻,使其成为了区域的地标之一。木板之间距离不同,让人们可以从不同视角观看铁轨、火车和城市。栏杆一侧设置长椅供人左下休息,使得桥梁不仅是一条过道,还是一个能够停留的场所。
▼弧形桥梁由木廊覆盖,一侧设置长椅,提供不同的景观视角


▼从地面看向桥梁,成为城市的新地标

木廊是桥梁中最具代表性的 元素。它们标识了桥梁的入口和交汇处,与城市形成对话。同时,它们打断了人们在桥上的旅程。木廊之间距离不同,结合桥体本身的弧度,创造了不断变化的视野,让人们可以一直从新的角度观看铁轨以及来去的车辆。越靠近桥梁中部,木廊越密,隐蔽的空间氛围邀人停留;在桥梁的两端,木廊之间的距离更大,提供更加广阔的城市视野。建筑师对项目体量的考量包含对柱廊形状的设计,其倾斜的角度随运动的节奏变化,截面在通往桥梁中部的过程中不断扩大。越来越开放的框架突显了桥梁在铁轨上方的重要性。
▼木廊越靠近桥梁中部越密

▼木廊越靠近桥梁中部,向外倾斜的角度越大

▼不同疏密的木廊创造丰富的行走体验


木制框架不仅塑造了行人与场所之间的关系,还满足了具体的功能需求。设计师在施工时将照明系统整合在框架内,防止天气和风对器材的不利影响。木制人行桥上埋设了防滑带,即便在恶劣的天气里,人们也可以安全行走。St.Laud车站的新步行桥不仅可以帮助人们穿越铁轨,更是一个新的城市地标,供人停留、闲逛和交谈,看火车来去不息。
▼步行桥为人们提供停留场所,欣赏不同的城市风景


▼屋顶平面图

▼立面图


▼剖面图

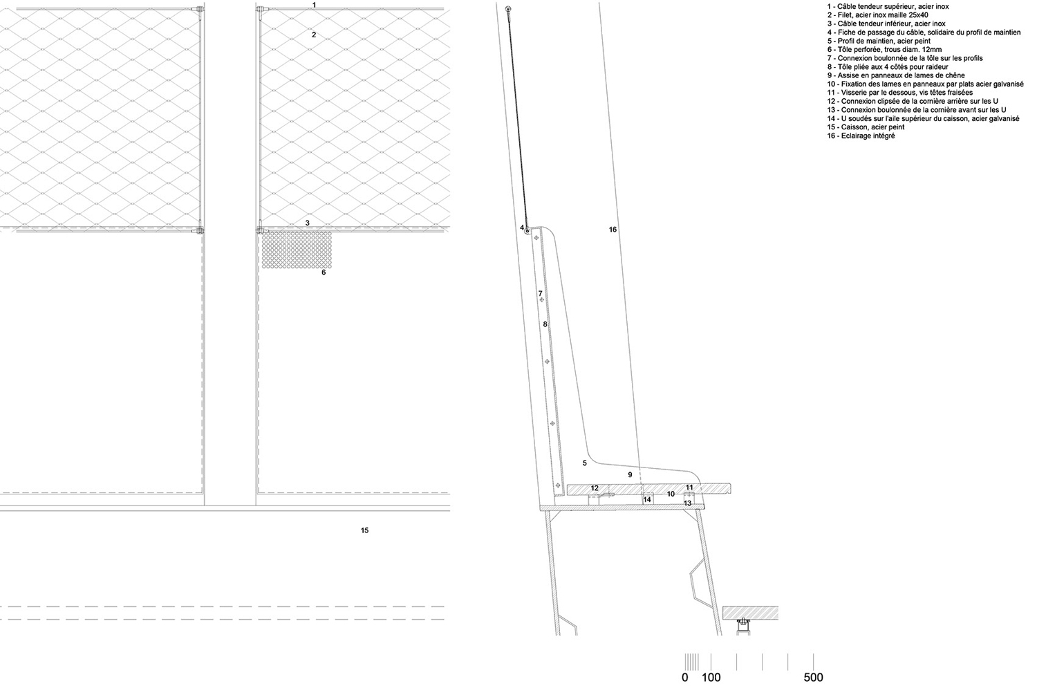
▼细部






